TILL SALU
Stort hus med två lägenheter samt en gårdsbutik och ekocafé
En stor trädgård med fem små växthus och stora möjligheter att odla
En avstyckad del av Huveröd 1:67 i Svenshögen i Stenungsunds kommun
Fastigheten i stort
Den avstyckade delen av fastigheten består av ett stort hus i trä på ca 255 kvm med tre separata delar: två lägenheter (ca 75 resp 120 kvm) samt en gårdsbutik- och café-del (60 kvm) På tomten finns dessutom en lillstuga (6 kvm), ett förrådsskjul (40 kvm), ett litet "trädhus" utan tak, en lekstuga med rutschbana, fem små växthus (totalt 60 kvm), en källare för plantuppdragning med växtlampor samt en vacker trädgård på 3000 kvm.
Fastigheten är i gott skick. Besiktning har gjorts och det blev bara ett antal mindre anmärkningar, varav de akuta har åtgärdats.
Just nu bedrivs en verksamhet på fastigheten kallad Solgläntan Hållbar Hälsa med odlingar, gårdsbutik och ekocafé. På hemsidan finns också en liten video tagen med drönare för några år sedan.
Huset värms med bergvärme, men har också möjlighet till vedeldning om så behövs. Huset har kommunalt vatten och avlopp samt indragen fiber. Det finns också en brunn för bevattning av trädgården.
Det finns även en stor solvärme anläggning, men den behöver i så fall repareras på grund av läckage.
Begärt pris
Begärt pris är 4,65 Mkr (inkl lösa inventarier för 150 000 kr) för den avstyckade fastigheten inkl 3000 kvm tomt. Detta pris inkluderar så gott som all inredning i gårdsbutiken med espressobryggare, kassaapparat, kylar och frysar liksom en helt ny ångdusch, fina garderober, mycket trädgårdsmaterial, LED lampor för plantuppdragning, bärbuskar, fruktträd etc.
En uppskattning av delarnas värde skulle kunna vara 1,4 Mkr för den lilla lägenheten, 1,8 Mkr för den stora lägenheten och 1,3 Mkr för gårdsbutiken. Men fastigheten säljs i sin helhet.
Hus till uthyrning
I direkt anslutning till den avstyckade fastigheten finns ett hus på 75 kvm till uthyrning om så önskas. Detta hus kan antingen användas för boende eller som ett slags gemensamhets- och aktivitetshus.
Vem vi letar efter
Väldigt gärna skulle vi vilja hitta en grupp människor, som vill bilda ett litet kollektiv och som allra helst gemensamt också skulle vilja driva gårdsbutik och ekocafé liksom trädgård vidare. Och som också helst är intresserade av att vara del av den större "community" som finns här. Mer om denna nedan. Men vi är självklart öppna för att sälja till alla som är intresserade.
Så inklusive huset till uthyrning kan upp till tre "par" eller konstellationer bo och bilda ett kollektiv här. Eller fyra om man bygger om gårdsbutiken till en lägenhet.
Vi kommer själva att bo kvar i det tredje huset, som finns på tomten idag, så vi kommer att bli grannar.
Fastighetens omgivningar och community
Fastigheten är speciell just med tanke på var den ligger och vilka grannar som finns i närheten. Så för vissa köpare kan detta vara en stor fördel.
Fastigheten är belägen i Svenshögen, som i kommunhuset nere i Stenungsund beskrivs som det kreativa klustret i kommunen. I Svenshögen bor åtminstone ett 50-tal människor med intresse för ekologi, omställning, personlig utveckling, meditation och andlig utveckling, konstnärlig verksamhet, ekologisk odling, permakultur och liknande. Vi har också en gemensam byamail, för att kunna hålla kontakt med varandra.
Huveröd 1:67 ligger i ett speciellt område på ca 300 x 900 meter med ett dussintal hus, där alla tillhör denna "alternativa" community. Närmsta granne är Solhälla Kursgård med kurser inom personlig utveckling, meditation och andlig utveckling. På Solhälla har just invigts ett helt unikt, åttakantigt tempel, som har blivit som ett slags kraftcenter för "Solklustret".
Sjön Hällungen ligger bara ca 150 meter från fastigheten. Den är ca 6 km lång och har gott om badmöjligheter och väldigt rent vatten.
Några meter från sjökanten ligger också bygdens gemensamhetsbastu med bastubad varje tisdag och fredag. Inte långt därifrån finns också en liten, långgrund sandstrand.
Inom klustret finns också Dalhem Farm, som odlar ekologiska grönsaker på ca 2 hektar mark liksom Hällskogen på 28 hektar, som är en skog som sköts genom s.k. kontinuerligt skogsbruk. Och med fina vandringsstigar längs bäcken och i storskogen.
Och nära finns även den ekonomiska föreningen Hällmarken med 20 hektar mark och planer på att bygga "tiny houses". Längst uppe till vänster på bilden nedan finns en tillsammansodling för ett 10-tal personer. Och längst upp till höger bakom träden bor ett par, som ordnar musikevents då och då i sin trädgård, där det finns en liten scen.
På bilden nedan ses infarten till vår fastighet liksom den stora parkeringsplatsen, som delas med oss på grannfastigheten. Där syns också delar av skjulet samt det s.k. marknadsbordet. Och nederst till höger syns en av de tre dammarna på fastigheten med näckrosor och guldfiskar.
I den nedre, vänstra delen av huset finns gårdsbutiken och ekocaféet på 60 kvm. I den övre vänstra delen samt i den högra delen av huset finns den större lägenheten på 120 kvm. Den har 2 rum och kök och hall i nedre plan samt ett badrum med en ångdusch (helt oanvänd). I övre plan finns en dusch och en toalett, ett sovrum samt ett stort vardagsrum med utsikt över sjön (i alla fall vintertid). Väggen på bilden vetter mot öster.
I den västra delen av byggnaden finns en separat lägenhet i två plan på ca 75 kvm. Den har en öppen planlösning, men med separat kök, hall och badrum.
På bilden ovan syns också två av de fem växthusen. Det övre har isolerglas och kan också användas som uterum. Möjlighet finns att öppna upp en dörr från lägenheten ut till uterummet i stället för fönstret som syns på bilden.
På kartan nedan syns till vänster det stora huset, i mitten finns skjulet och till höger huset på grannfastigheten, som finns att hyra om så önskas. Det har ett pack- och kylrum i bottenplan, i huvudplan ett stort aktivitetsrum på 50 kvm samt kök, toalett, dusch och ett litet sovrum. På vinden finns en enkel sovsal med plats för upp till 6 personer. Huset ligger precis intill den stora parkeringsplatsen.

Så här ser huset som kan hyras ut. Det ägs av säljaren Åke, som själv tillsammans med sin fru kommer att bo i huset som skymtar till vänster bakom taket.
Söder om tomten leder en väg direkt ner till sjön. Till höger skymtar lekstugan.
Utanför gårdsbutiken finns ett runt "trädhus" för cafégäster. I bakgrunden kan man se sjön samt delar av kursgården Solhälla.
Alldeles bredvid trädhuset finns en lekstuga för barnen.
Utanför gårdsbutiken finns en terass för cafégäster med utsikt över kursgården och sjön.
Framför huset finns ett dussintal pallkragar med blommor och kryddor. Där finns också en näckrosdamm med guldfiskar framför lillstugan. Lillstugan är renoverad invändigt och skulle lätt kunna isoleras för året runt bruk. Den är 6,3 kvm.
Väster om huset finns tre små glasväxthus för plantuppdragning och odling. Här finns också ett antal komposter av olika slag.
Nedanför uterummet som visades ovan ligger ett annat växthus. Det kan värmas med en luftvärmepump och har värmeslingor i bäddarna, tempererat vatten att vattna med och LED lampor för belysning. Där kan man skörda färska blad redan i mars. I alla fall om man har lite gröna fingrar. Sägas skall dock att vissa reglar i huset behöver bytas ut eller förstärkas.
Huset har två källare. Under den äldre delen av huset finns en källare på ca 30 kvm. Standarden är ganska låg där. Där finns fyra rum, där vi har 4 frysar och 2 tvättmaskiner samt ett hydrofor-rum. Fastigheten har egen brunn och det är möjligt att ta vatten ur brunnen för bevattning. Kommunalt vatten kostar ju.
I källaren under den nya delen finns två rum på ca 30 kvm var. I det ena finns ett 50-tal LED lampor för plantuppdragning. Ihop med de fem växthusen har vi där dragit upp 18 000 plantor under en säsong. Och i det andra rummet finns vedpannan och 3 ackumulatortankar på 1500 liter totalt. Vedpannan är nyligen inspekterad och godkänd för vedeldning. Vi hade ju inte eldat sedan vi fick bergvärme, men med dagens elpriser kommer vi att elda igen.
Tyvärr fungerade inte kommunens elektroniska system för lagring av ritningar, så jag har så gott det går rekonstruerat ritningar från de gamla ritningar jag hittade.
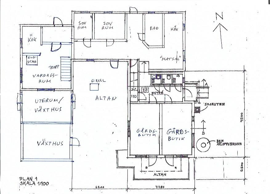
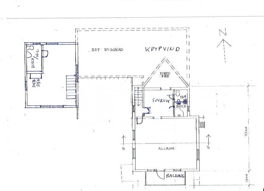
Den gamla och den nya delen av huset är förskjutna ett halvt plan, men i ritningen ser det ut som om dom ligger i samma plan. Här kommer först de nedre delarna av huset.
Till vänster syns nedre plan av den lilla lägenheten samt två växthus. Överst syns den nedre delen av den stora lägenheten. Och nederst till höger syns gårdsbutiken. Mellan växthusen och gårdsbutiken finns en altan som går helt runt till framför gårdsbutiken.

Och här kommer ritning på de övre planen av huset. I den lilla lägenheten till vänster finns ett stort rum samt ett duschrum och toalett. I den stora lägenheten syns ett allrum samt sovrum, dusch och toalett. Plus en härlig balkong.

Gårdsbutiken inklusive caféet består av två rum. Bakom finns ett godkänt cafékök samt sköljrum, toalett och personaldusch. Det mesta av inredningen inkl espressobryggaren kommer att ingå i köpet.
Och skulle man inte vilja driva gårdsbutik och ekocafé, så finns det högst troligt ett intresse från ett antal personer i byn att driva dem som en gemensam bya aktivitet. Och betala hyra för lokalerna.
Här kommer några bilder tagna av en amatör. De första bilderna är från entrérummet.
Och här några bilder från det inre rummet i gårdsbutiken
Och så den bakre delen av butiken med cafékök och sköljrum (som dom ser ut i bruk)
Och så några bilder från den stora lägenheten. På övre plan ett stort vackert rum på 40 kvm samt ett sovrum på 10 kvm och en toalett och ett duschrum.
I nedre plan av den stora lägenheten finns kök, badrum, ett långt rum med soffa i ena änden och matsalsbord i andra änden. Innanför finns två mindre rum, just nu ett behandlingsrum och ett kontor.
Och i direkt anslutning till köksbordet finns köket.En ny ägare skulle kanske måla skåpsluckorna.
En härlig utsikt medan man lagar mat
Och här några bilder från den andra lägenheten. Den är i två plan med en öppen planlösning. På första bilden ser man också växthuset, som skulle kunna användas som uterum. Man skulle kunna ta upp en dörr dit. Först två bilder på nedre plan, där köket finns.
Och sedan två bilder från övre plan, där dusch och toalett finns.
Tomten är en kuperad bergstomt och bakom huset är det ett berg med en stor platå ovanför. På berget har vi placerat ett 50-tal pallkragar för odling. Och av den skog som växte på platån har vi nu gjort en fin trädgård med ett fantastiskt mikroklimat.
För att förbättra logistiken, så har vi byggt en trappa upp till de övre odlingarna. Det underlättar när vi skall bära upp hästgödsel och ensilage till bäddarna. Något som vi får gratis från gårdar i närheten.
Årets skörd av vitlök på tork bredvid näckrosdammen
Här en bild på vår buddha. Till höger finns ett vattenfall, som får vatten från den nedre dammen och rinner ned i den övre av de tre dammarna och så tillbaka till den nedre igen.
Nedan finns en bild när Åke håller en kurs i ekologisk odling. Artistnamnet är då Jordgubben. Därav namnet på denna sida.
En möjlighet för dem som vill hålla kurser eller andra typer av event är att hyra grannhuset som aktivitetshus i stället för boende.
